Трапы
Бренд:
АО "ЭССП"
Под заказ
ТКП
цена по запросу
Заказать товар
Задать вопрос
Задать вопрос
Наша организация работает только с юридическими лицами, с НДС
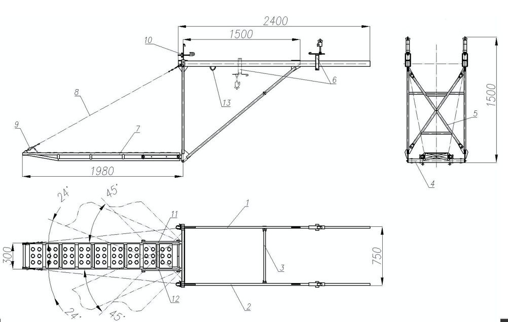
Трап консольный поворотный ТКП
Трап консольный поворотный ТКП (ТУ 5221-120-27560230-13) предназначен для размещения на нём электромонтёра при проведении работ на натяжных гирляндах изоляторов анкерно-угловых опор ВЛ 35-110 кВ независимо от угла поворота и на участках провода, расположенных в непосредственной близости от гирлянд изоляторов. Трап изготавливается в климатическом исполнении УХЛ категории 1 по ГОСТ 15150.Трап состоит из рамы и рабочей площадки, сваренных из алюминиевых труб. В рабочем положении рабочая площадка устанавливается в отверстия рамы и страхуется шплинтами (фиксирующими шплинтами).
Трап предназначен для работы в горизонтальной плоскости с возможностью изменения угла поворота рабочей площадки в обе стороны на 0°, 24° и 45°.
Рама трапа жестко крепится к траверсе опоры, а рабочая площадка консольно выступает за пределы тела анкерно-угловой опоры.
Такелажные точки выполнены в виде скоб, располагающихся на двух рамах, за которые заводится канат, и трап поднимается на место установки.
Технические характеристики:
Грузоподъёмность, кг – 150.Углы поворота трапа, град. – 0; 24; 45.
Габариты рабочей площадки, м – 2х0.3.
Габариты трапа в сложенном состоянии, м – 2,3х1,9х0,75.
Диапазон рабочих температур – 40…+40°С.
Комплект поставки
- Рама левая
- Рама правая
- Штанга
- Балка опорная
- Крестовина
- Узел навески задний
- Рабочая площадка
- Строп цепной
- Карабин
- Узел навески передний
- Упор выдвижной левый
- Упор выдвижной правый
- Скобы такелажные
Задать вопрос
Оформите заявку на сайте, мы свяжемся с вами в ближайшее время и ответим на все интересующие вопросы.
Заявки принимаются так же по электронной почте info@lep-snab.ru
Заявки принимаются так же по электронной почте info@lep-snab.ru
Характеристики
| Цена | цена по запросу |
| Бренд | АО "ЭССП" |
| Тип | лестничный |
