Траверсы ТМ
В наличии
ТМ-63
цена по запросу
Заказать товар
Задать вопрос
Задать вопрос
Наша организация работает только с юридическими лицами, с НДС
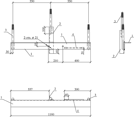
Траверса ТМ-63
Траверса ТМ-63 используется на промежуточной опоре П20-3Н и на ответвительной анкерной опоре ОА20-3Н.Производятся в соответствии с типовым проектом 27.0002-28;
При установке опор высоковольтных воздушных ЛЭП номинальным напряжением 10 кВ траверса ТМ-63 используется для крепления проводов линии.
Производство траверсы ТМ-63 осуществоляется из углеродистой стали, которая отличается высокой прочностью и надежностью. Для придания траверсе антикоррозионной стойкости она покрывается лаком на битумной основе типа БТ-577.
Крепление траверсы на опоре ЛЭП выполняется специальными крепежными хомутами, при этом каждый тип хомутов расчитан на применение с определенным видом стойки. Хомуты Х-1 используются со стойками СВ105, а хомуты Х-42 - со стойкой СВ110. Поставка хомутов для определенного вида опор выполняется по отдельному заказу.
Масса изделия 22,3 кг.
Производственная площадка ООО "Спектрум Групп" позволяет изготовить продукцию по индивидуальным чертежам в любом исполнении.
Задать вопрос
Оформите заявку на сайте, мы свяжемся с вами в ближайшее время и ответим на все интересующие вопросы.
Заявки принимаются так же по электронной почте info@lep-snab.ru
Заявки принимаются так же по электронной почте info@lep-snab.ru
Характеристики
| Цена | цена по запросу |
